Nossos Serviços
Engenharia civil completa, do projeto à execução.
Projetos


Desenvolvemos projetos estruturais, elétricos, hidrossanitários, contenções e muros de arrimo detalhados.


Consultoria
Oferecemos consultoria técnica e laudos especializados.
Executamos obras, reformas e vistorias com cuidado.
Execução de Obras
Projetos
Elaboração de projetos estruturais e complementares para sua obra


Estruturas Metálicas
Desenvolvemos projetos de estruturas metálicas robustas, garantindo durabilidade e precisão para indústrias e condomínios.


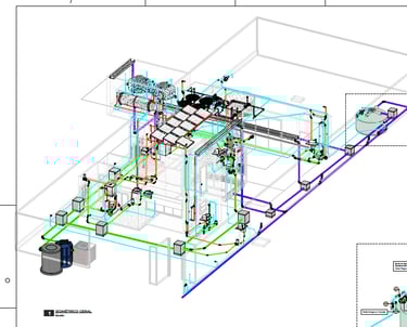
Projeto Elétrico
Projetos de muros de arrimos e contenções, complexos e dos mais variados segmentos para atender à condição de cada projeto


Projetos de Arrimos e Contenções
Projetos hidrossanitários claros e bem detalhados, facilitando a execução e visualização de seu sistema dando mais segurança para cada cliente.


Projetos elétricos altamente detalhados, com organização e clareza, elaborados por uma equipe capacitada e focada em atender as necessidades de cada cliente.
Projeto Hidrossanitário
Laudos, Consultorias e Análises Estruturais
Elaboração de laudos, perícias judiciais e extrajudiciais com o intuito de atender à todas as necessidades de cada cliente
Laudo de Incêndio
Laudo de galpão atingido por incêndio para avaliação estrutural e análise de risco local


Aerofotogrametria
Levantamento de área invadida através de aerofotogrametria realizada com utilização de drone


Análise de comportamento de estrutura sob incidência de vento
Análise estrutural
Execução de Obras
Execução de Obras com qualidade e precisão


Execução de fundação para galpão
Execução de fundação para galpão em estrutura pré fabricada


Fundação para edifício de 5 pavimentos
Execução de fundação para edificio de 5 pavimentos com estrutura pré-fabricada


Execução de obra residencial
Execução de obra residencial - Villagio Milano


Execução de obra residencial
Execução de obra residencial - Vale do Lago


Execução de reforma em piscina
Execução de reforma em piscina, realizando a remoção de todo o revestimento, impermeabilização e regularização para reparo estrutural e execução de novo acabamento
